Tư vấn xây nhà 2 tầng khang trang cho gia đình ít tiền

 10/05/2022  0  Bình luận

Hai vợ chồng tôi vừa mới cưới, có khu đất 160 m2, muốn làm nhà có 3 phòng ngủ. Tuy nhiên, chúng tôi không có nhiều tiền nên chỉ muốn xây nhà đơn giản nhất có thể. (Hoàn).

KTS Phạm Thanh Truyền tư vấn như sau:

Với nhu cầu như của gia đình, anh chị chỉ cần xây nhà có một tầng, một lửng là đủ. Tầng một có một phòng ngủ chính cùng các không gian cơ bản như phòng khách, bếp ăn, garage, WC. Các khoảng vườn được bố trí rải rác để đem lại màu xanh và ánh sáng cho mọi phòng.

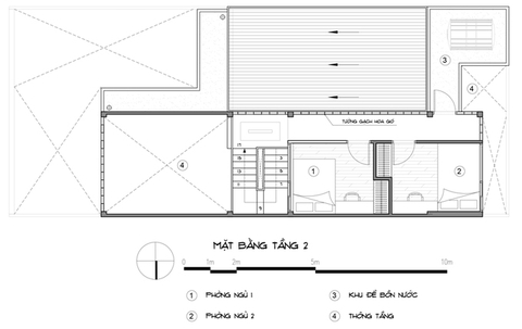
Hai phòng ngủ dự phòng được đặt ở tầng 2. Hiện tại, anh chị chưa có con nên tạm thời có thể chưa cần làm WC ở đây để tiết kiệm chi phí. Khu WC ở dưới tầng một tách làm 3 không gian riêng biệt để tăng hiệu quả sử dụng (phòng tắm, bồn rửa, khu vệ sinh riêng).

Anh chị cần chuẩn bị khoảng 450 triệu cho việc xây thô, hoàn thiện cơ bản, có lắp đặt thiết bị khu vệ sinh. Khoản kinh phí này chưa bao gồm tiền tủ bếp, đồ gỗ rời (bàn ghế, tủ đồ, giường) và đồ điện tử.

Tổng diện tích ở của cả 2 tầng là 185 m2 với kinh phí 450 triệu. Bởi vậy, chi phí xây dựng chưa tới 2,5 triệu một m2 là mức khá thấp. Do đó, nhà sẽ lợp mái tôn, xây móng đơn giản do nền đất cứng. Chủ nhà cần xác định sẽ không thể cơi nới thêm tầng nữa.

Viết bình luận của bạn:
Liên hệ qua Zalo
hotline
0868676704
popup

Số lượng:

Tổng tiền: