Các bước thiết kế nhà xưởng

Xây dựng nhà xưởng luôn là bài toán phức tạp với đa phần mọi người muốn đầu tư xây dựng phục vụ sản xuất. Các vấn đề như quy mô nhà xưởng, sơ đồ bố trí mặt bằng, vật liệu, giá thành xây dựng, tiến độ thi công... luôn là một thắc mắc với các nhà đầu tư.
Bài viết sẽ tóm tắt các bước quan trọng nhất và các lưu ý trong quá trình triển khai xây dựng để bạn có thể hiểu rõ hơn và có những lựa chọn tốt nhất cho dự án của mình.
Các bước triển khai xây dựng nhà xưởng:
Sau khi xin được giấy phép đầu tư, quá trình triển khai xây dựng nhà xưởng có thể chia làm 3 bước như sau:
- Thiết kế nhà xưởng
- Quá trình chuẩn bị thi công
- Thi công xây dựng
Thiết kế nhà xưởng
Chi phí xây dựng nhà xưởng rất lớn nên công tác lên kế hoạch và thống nhất phương án tuy mất nhiều thời gian nhưng bước này rất quan trọng vì nó giúp chủ đầu tư cũng như nhà thầu hiểu rõ về nhu cầu của quá trình sản xuất sau này, tránh được những phát sinh, thay đổi trong quá trình thi công. Giúp dự án hoàn thành đúng tiến độ và sớm đưa vào sử dụng, tối ưu chi phí đầu tư.
Bước thiết kế nhà xưởng thường gồm 2 bước: Thiết kế phương án sơ bộ và Thiết kế bản vẽ thi công

Thiết kế phương án sơ bộ
Sau khi trao đổi và hiểu rõ nhu cầu của chủ đầu tư, tùy vào từng lĩnh vực sản xuất, dây truyền công nghệ và quy mô nhà xưởng khác nhau, các kiến trúc sư và kỹ sư sẽ cụ thể hóa bằng các bản vẽ mặt bằng quy hoạch tổng thể, mặt bằng từng hạng mục và bản vẽ phối cảnh 3D giúp chủ đầu tư có cái nhìn trực quan về dự án.
Bản vẽ nhà xưởng giai đoạn này cần thể hiện rõ các hạng mục xây dựng, mật độ, chỉ giới xây dựng, đường nội bộ, mật độ cây xanh, các bản vẽ về phòng cháy, thoát hiểm…

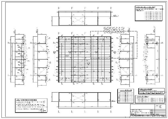
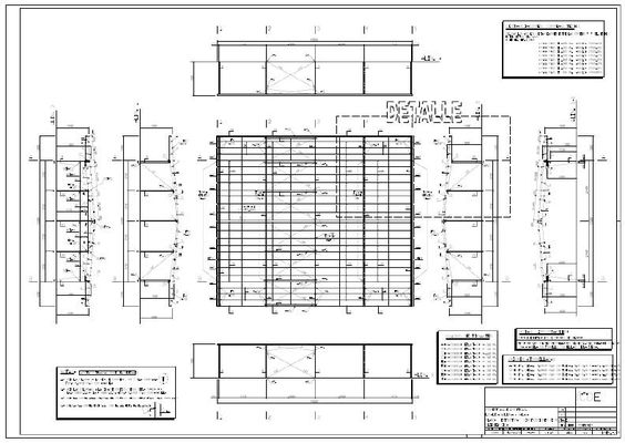
Thiết kế bản vẽ thi công
Sau khi thống nhất được phương án sơ bộ là giai đoạn thiết kế bản vẽ thi công. Bản vẽ giai đoạn này sẽ thể hiện chi tiết tất cả các hạng mục xây dựng, từng chi tiết cấu tạo về kiến trúc, phương án kết cấu móng, bản vẽ khung thép tiền chế, các nút liên kết, quy cách vật liệu, các bản vẽ M&E, phòng cháy cho từng hạng mục cụ thể như:
- Nhà xưởng sản xuất
- Nhà kho
- Văn phòng
- Nhà ăn
- Bể ngầm
- Trạm điện
- Nhà xe, nhà bảo vệ
- Cổng, tường rào...
Song song giai đoạn này là quá trình xin cấp phép xây dựng, cấp phép PCCC
Lập ra bảng dự toán nhà xưởng đưa ra từng đầu việc và khối lượng cụ thể tất cả các hạng mục.
Bộ hồ sơ bản vẽ thi công và bảng dự toán ( BOQ) sẽ là căn cứ để nghiệm thu công việc xây dựng và khối lượng công việc hoàn thành sau này.